Coimbra  22 de Abril de 2026 | Director: Lino Vinhal

Semanário no Papel - Diário Online

 

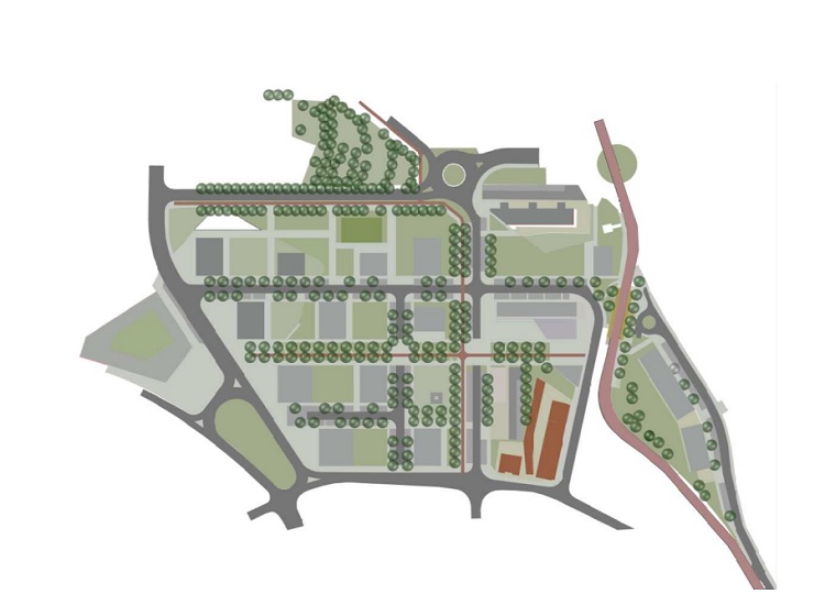
Câmara de Coimbra apresenta estudo urbanístico para a zona da Casa Branca

15 de Outubro 2023 Jornal Campeão: Câmara de Coimbra apresenta estudo urbanístico para a zona da Casa Branca

O Executivo da Câmara de Coimbra analisa, segunda-feira, um estudo urbanístico para a zona da Casa Branca, abrangendo uma área de 6,52 hectares, 17 propriedades, a que acresce a faixa antes ocupada pela linha férrea.

Segundo o Município, pretende-se garantir o desenvolvimento equilibrado da cidade e, com base neste pressuposto, deslocalizar o ITAP e as oficinas da Transdev.

Com a construção do MetroBus, com uma paragem na Casa Branca, entendeu-se “oportuno” rever os estudos existentes para a zona da Solum Sul/Casa Branca, articulando-os entre si em toda esta área de grande centralidade, delimitada a nascente pela Rua Vale de Porcas, a poente pelo loteamento da Obrecol/Rua João de Deus Ramos, a norte pela Rua Tomé Rodrigues Sobral/Rua Jorge Anjinho e a sul pela Rua da Casa Branca.

Com esta proposta pretende-se, explica-se na informação dos serviços, uma nova abordagem ao nível do planeamento e do urbanismo, para garantir um desenvolvimento equilibrado e harmonioso da cidade e das suas actividades, com o objectivo de garantir qualidade de vida, nas suas várias vertentes. Como tal, “pressupõe-se a deslocação do ITAP – Instituto Técnico Artístico e Profissional e das oficinas da Transdev, funções pouco compatíveis com a reabilitação desta importante área da cidade”, adianta a informação dos serviços municipais.

De acordo com a informação, está prevista a construção de 181 fogos, cerca de 5.295 m2 (mínimo) de áreas de comércio/serviços/restauração e um edifício destinado a equipamento com 1.280 m2. Valores que poderão, ainda, sofrer ajustamentos na evolução dos projectos, sublinha-se no mesmo documento.

Prevê-se na zona norte do estudo, a criação de um lote destinado a equipamento, na proximidade do jardim existente na Rua Tomé Rodrigues Sobral/Rua Jorge Anjinho, com cerca de 1.250m2, distribuídos por dois pisos, confinante com zona verde de uso público dotada de um equipamento desportivo e servida por ciclovias.

Toda a área será dotada de uma boa oferta de estacionamento público, havendo margem para alguns ajustes face às tipologias de fogos a fixar nos projectos, bem como às tipologias de comércio/serviços/equipamentos, acrescenta-se no documento. Prevê-se, ainda, que a execução do estudo possa assumir diferentes fases, em processos autónomos, desde que articulados numa ideia comum que se reflita na imagem do espaço público e da edificação de conjunto.